Tepelná čerpadla vzduch - voda, země - voda
  • Produkty
    • Tepelná čerpadla
      vzduch-vodazemě-voda
    • Systémy chlazení
    • Podlahové vytápění
    • Ventilační systémy
    • Fotovoltaické elektrárny
    • Inteligentní domy
  • Reference(akutální stránka)
  • Blog
  • Servis
  • Kontakt
Poptávka

BLOG podlahove topeni - NOVOSTAVBA

Provádíme realizace vytápění na klíč od projektové dokumentace, přes pokládku podlahového topení po realizaci topného zdroje - tepelné čerpadlo vzduch-voda.

 

Reference 1) Příklad REALIZACE Nový Hrozenkov  2019

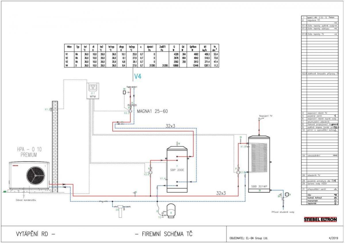
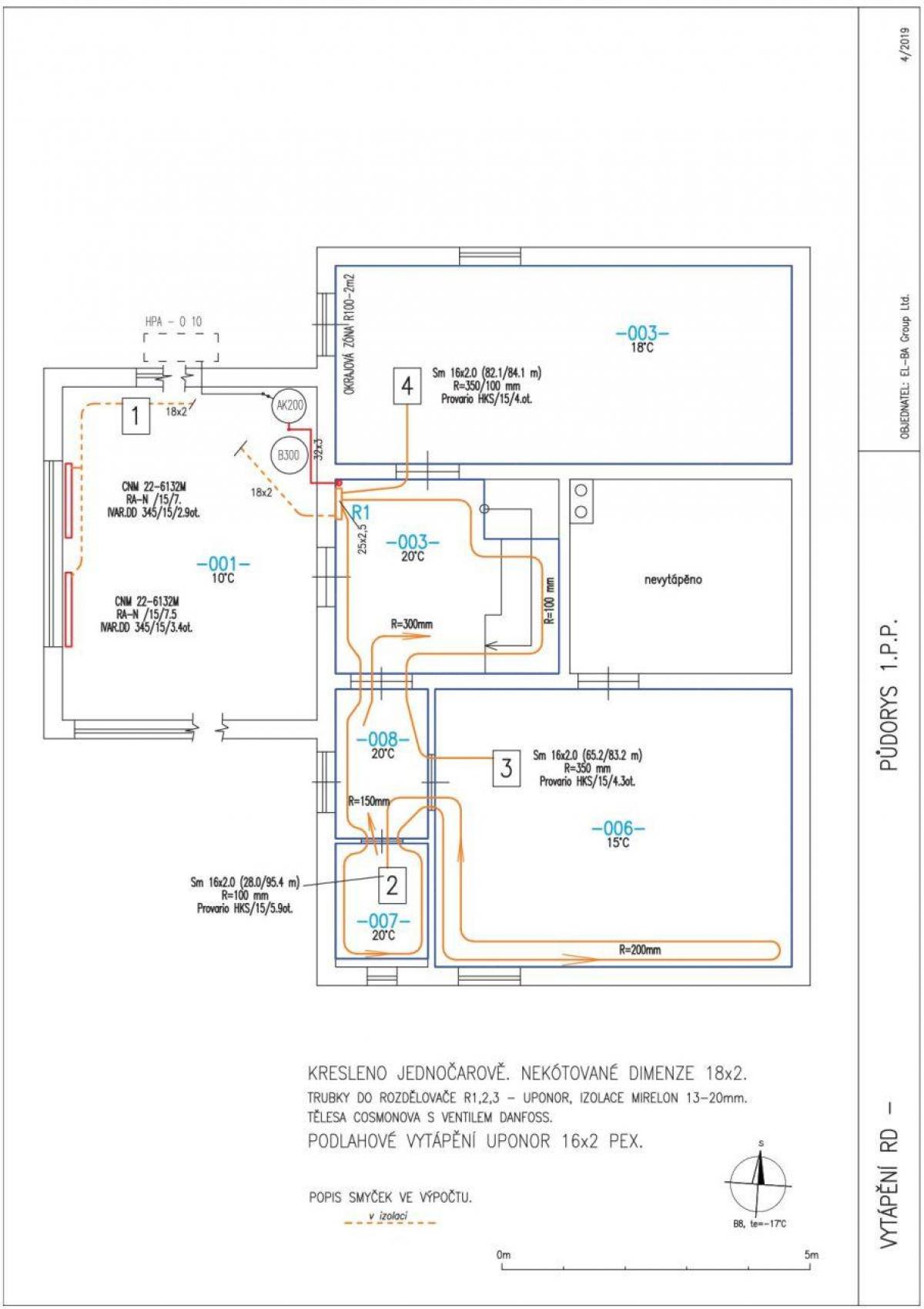
Tepelné čerpadlo vzduch-voda HPA-O10 C Premium STIEBEL ELTRON, podlahové topení UPONOR.

Byli jsme při stavbě od začátku výstavby.  Postup jednotlivých fází stavby na kterých jsme se podíleli.

  • Vypracování realizačního projektu vytápění.
  • Instalace páteřních rozvodů vytápění, osazení skříní podlahového topení.
  • Instalace podlahového topení UPONOR na stavbou připravené izolace.
  • Instalace tepelného čerpadla vzduch-voda, montáž klimatizace SAMSUNG.
  • Servis, profylaktické prohlídky, nastavení zařízení, aj.

Reference 2) Příklad REALIZACE Valašské Meziříčí  2019

Tepelné čerpadlo vzduch-voda HPA-O13 Premium STIEBEL ELTRON, podlahové topení UPONOR, klimatizace SAMSUNG.

Byli jsme při stavbě od začátku výstavby.  Postup jednotlivých fází stavby na kterých jsme se podíleli.

  • Instalace páteřních rozvodů vytápění, osazení skříní podlahového topení, instalace rozvodu chlazení.
  • Instalace podlahového topení UPONOR na stavbou připravené izolace.
  • Instalace tepelného čerpadla vzduch-voda, montáž klimatizace SAMSUNG.
  • Servis, profylaktické prohlídky, nastavení zařízení, aj.
Mám zájem o podobné řešení
BLOG podlahove topeni - NOVOSTAVBA (BLOG podlahove topeni - NOVOSTAVBA_20)
BLOG podlahove topeni - NOVOSTAVBA (BLOG podlahove topeni - NOVOSTAVBA_22)
BLOG podlahove topeni - NOVOSTAVBA (BLOG podlahove topeni - NOVOSTAVBA_23)
BLOG podlahove topeni - NOVOSTAVBA (BLOG podlahove topeni - NOVOSTAVBA_24)
BLOG podlahove topeni - NOVOSTAVBA (BLOG podlahove topeni - NOVOSTAVBA_25)
BLOG podlahove topeni - NOVOSTAVBA (BLOG podlahove topeni - NOVOSTAVBA_26)
BLOG podlahove topeni - NOVOSTAVBA (BLOG podlahove topeni - NOVOSTAVBA_27)
BLOG podlahove topeni - NOVOSTAVBA (BLOG podlahove topeni - NOVOSTAVBA_28)
BLOG podlahove topeni - NOVOSTAVBA (BLOG podlahove topeni - NOVOSTAVBA_29)
BLOG podlahove topeni - NOVOSTAVBA (BLOG podlahove topeni - NOVOSTAVBA_30)
BLOG podlahove topeni - NOVOSTAVBA (BLOG podlahove topeni - NOVOSTAVBA_31)
BLOG podlahove topeni - NOVOSTAVBA (BLOG podlahove topeni - NOVOSTAVBA_33)
BLOG podlahove topeni - NOVOSTAVBA (BLOG podlahove topeni - NOVOSTAVBA_34)
BLOG podlahove topeni - NOVOSTAVBA (BLOG podlahove topeni - NOVOSTAVBA_35)
BLOG podlahove topeni - NOVOSTAVBA (BLOG podlahove topeni - NOVOSTAVBA_36)
BLOG podlahove topeni - NOVOSTAVBA (BLOG podlahove topeni - NOVOSTAVBA_37)
BLOG podlahove topeni - NOVOSTAVBA (BLOG podlahove topeni - NOVOSTAVBA_01)
BLOG podlahove topeni - NOVOSTAVBA (BLOG podlahove topeni - NOVOSTAVBA_02)
BLOG podlahove topeni - NOVOSTAVBA (BLOG podlahove topeni - NOVOSTAVBA_04)
BLOG podlahove topeni - NOVOSTAVBA (BLOG podlahove topeni - NOVOSTAVBA_05)
BLOG podlahove topeni - NOVOSTAVBA (BLOG podlahove topeni - NOVOSTAVBA_06)
BLOG podlahove topeni - NOVOSTAVBA (BLOG podlahove topeni - NOVOSTAVBA_07)
BLOG podlahove topeni - NOVOSTAVBA (BLOG podlahove topeni - NOVOSTAVBA_08)
BLOG podlahove topeni - NOVOSTAVBA (BLOG podlahove topeni - NOVOSTAVBA_09)
BLOG podlahove topeni - NOVOSTAVBA (BLOG podlahove topeni - NOVOSTAVBA_10)
BLOG podlahove topeni - NOVOSTAVBA (BLOG podlahove topeni - NOVOSTAVBA_12)
BLOG podlahove topeni - NOVOSTAVBA (BLOG podlahove topeni - NOVOSTAVBA_14)
BLOG podlahove topeni - NOVOSTAVBA (BLOG podlahove topeni - NOVOSTAVBA_15)
BLOG podlahove topeni - NOVOSTAVBA (BLOG podlahove topeni - NOVOSTAVBA_16)
BLOG podlahove topeni - NOVOSTAVBA (BLOG podlahove topeni - NOVOSTAVBA_17)
Všechny galerie

Vyplňte svoje údaje

Vaše jméno a příjmení
E-mail ve správném formátu
Vaše telefonní číslo
Zadejte prosím název vašeho města nebo obce
Předmět dotazu
Čeho se Váš dotaz týká?

Po vyplnění formuláře vám odpovíme v nejbližším možném termínu. Pokud chcete být informování o výhodných akcích a slevách, souhlasíte tím se zařazením do našeho newsletteru. Zásady ochrany osobních údajů

Kontakt

Tepelná čerpadla EL-BA Group
EL-BA Group Ltd.
Dolní Bečva 201
756 55 Dolní Bečva

IČO 27788296
DIČ CZ27788296

Kudy k nám?

GPS 49.4543717,
18.1931589
Navigovat
Mapa

Kam dál

  • Kontakt

Rychlé odkazy

Ochrana osobních údajů

Zavolejte nám

571 625 264

elbatzb@gmail.com


2026 © Tepelná čerpadla EL-BA Group - Dodávka, montáž a servis | Severní Morava

Obchodní název je registrovaná ochranná známka. Všechna práva vyhrazena.

Webové stránky jsme vytvořili v roce 2024 © PROSEO Media