WPL23E vnitřní Zlín
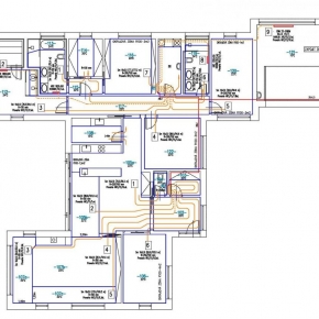
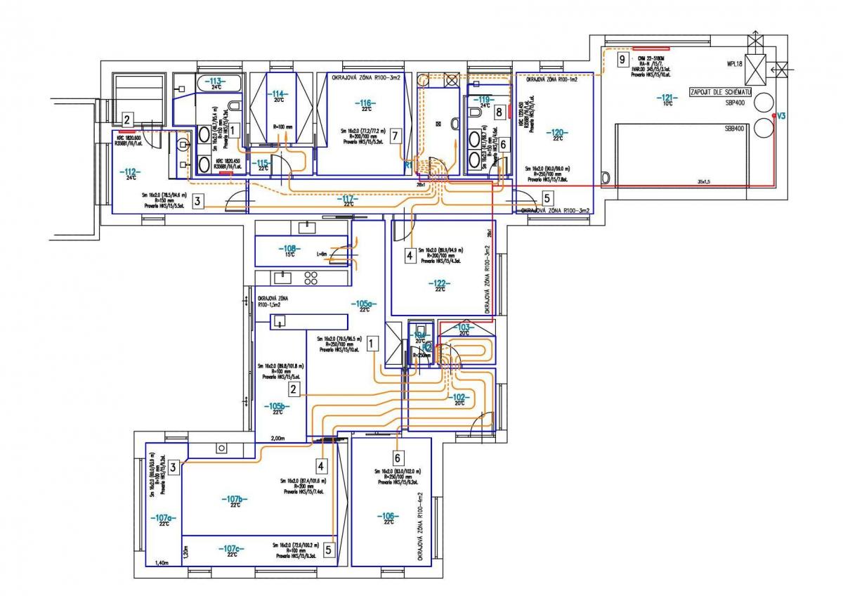
23. listopad 2021Rodinný dům s tepelnou ztrátou 10,9kW - novostavba.
Realizace: EL-BA Group, r. 2020 - 2021
Dodávka technologie:
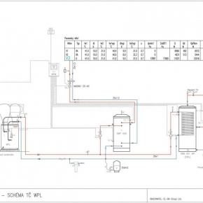
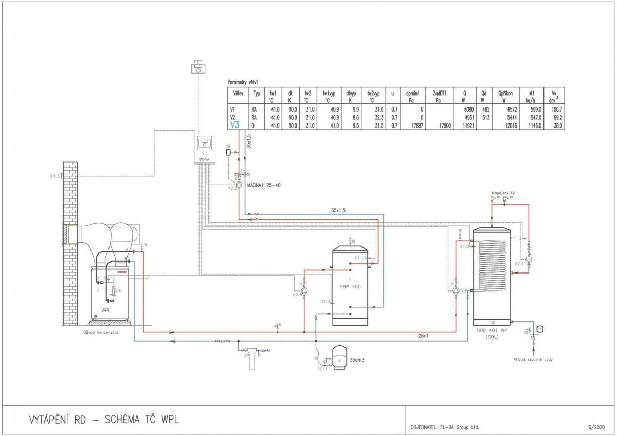
Tepelné čerpadlo vzduch-voda WPL23E STIEBEL ELTRON,
akumulační zásobník 200litrů SBP200, zásobník 300litrů SBB301WP pro
ohřev teplé vody.
Podlahové topení UPONOR, napojeno na nové
rozvody UT, rozdělovače UPONOR.
Napojení tepelného čerpadla pro ohřev venkovního bazénu.
Dodávka vč. projektu TOPO.













